
We are pleased to present our Legacy series park model floor plans. These designs are the culmination of more than two decades of experience in crafting park model residences. Our commitment to innovative design features and superior specifications results in some of the most aesthetically pleasing and spacious four-season park model homes available in the market.

We specialize in creating luxurious, custom-built park model homes that are tailored to your unique lifestyle. Now we are taking it to a new level by offering onsite finishing. This will allow us to really offer the estate level finishing that so many want.

We can now have our clients select custom colors, custom backsplash, flooring, etc. By doing most of the finishing onsite you will have no issues that come with shipping or limited factory options. Our build times will be a little longer, but it will be worth the wait.

The combination of our blended widths enables us to achieve greater dimensions. An example of this is on a standard 14 wide park model it measures only 38 feet in length, our 12/14 blend extends to 41 feet, resulting in a significantly more spacious kitchen and living room.

We design our build-outs in a manner that they are not included in the overall square footage of the home. This presents a significant advantage, as park models are limited to a maximum of 538 square feet. Our clients particularly appreciate the his and her closets.

The incorporation of build-outs, jogs, and cantilevers creates a variety of roof lines. These architectural features contribute to a visually striking appearance, contrasting sharply with a conventional box-like design.

TRADITIONAL ROOFLINE - VINYL SIDING

UPGRADED VINYL SIDING

HARDIE BOARD SIDING

SHED ROOFLINE - VINYL SIDING

UPGRADED VINYL SIDING

METAL CLAD SIDING






12/14 FT WIDE X 41 FT LONG
THE ODYSSEY IS A ONE BEDROOM WITH A VERY NICE KITCHEN THAT COMES WITH VERY LARGE PENINSULA WITH A WRAP AROUND EATING BAR, THE LIVING ROOM IS VERY SPACIOUS, THERE IS LOTS OF STORAGE WITH A BROOM CLOSET, A LINEN CLOSET, AND HIS AND HER CLOSETS.


13 FT WIDE X 41 FT LONG
THE ODYSSEY 2 IS A ONE BEDROOM PARK MODEL THAT HAS A FANTASTIC KITCHEN WITH A LARGE PENINSULA, AN INCREDIBLE LIVING ROOM WITH 7.5 FOOT WINDOWS, WALK IN SHOWER WITH GLASS DOORS, THE BEDROOM ALSO HAS GREAT WINDOW FEATURES AND A BUILT IN DESK.


12/14 FT WIDE X 41 FT LONG
THE MALIBU IS A ONE BEDROOM PLAN WITH SOME VERY NICE FEATURES LIKE HIS AND HER CLOSETS, THE LAUNDRY IS CONVENIENTLY LOCATED IN THE BEDROOM, THE KITCHEN HAS A PANTRY AND ISLAND. A VERY BRIGHT AND SPACIOUS PLAN.


12/16 FT WIDE X 38 FT LONG
AT JUST ABOUT 16 FEET WIDE YOU KNOW WHY WE CALL IT THE GRAND, THIS ONE BEDROOM HOME OFFERS ONE OF THE MOST SPACIOUS GREAT ROOMS IN THE PARK MODEL INDUSTRY, THE BEDROOM HAS HIS AND HER CLOSETS. THE ULTIMATE IN COMFORT.


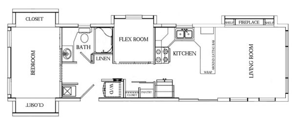
12/14 FT WIDE X 41 FT LONG
THE MONACO IS BEAUTIFUL ONE BEDROOM FLOOR PLAN THAT CAN ACCOMODATE A KING SIZE BED AND COMES WITH HIS AND HER CLOSETS OR BUILT IN ARMOIRES, THE U-SHAPE KITCHEN OFFERS A PANTRY, EATING BAR AND A DINING AREA, THE LIVING ROOM IS VERY BRIGHT AND SPACIOUS ANOTHER GREAT PLAN.


12/14 FT WIDE X 41 FT LONG
THE ROSEDALE IS BEAUTIFUL ONE BEDROOM ONE AND A HALF BATH FLOOR PLAN THAT CAN ACCOMODATE A KING SIZE BED AND COMES WITH HIS AND HER CLOSETS OR BUILT IN ARMOIRES, THE L-SHAPE KITCHEN OFFERS A PANTRY, ISLAND AND A DINING AREA, THE LIVING ROOM IS VERY BRIGHT AND SPACIOUS ANOTHER GREAT PLAN.


12/14 FT WIDE X 41 FT LONG
THE OASIS IS A TWO-BEDROOM PLAN WITH VAULTED CEILINGS
THROUGHOUT, HIS AND HER CLOSETS, ROOM FOR A KING SIZE BED, VERY OPEN LIVING AREA WITH AN L-SHAPED KITCHEN.


12/13 WIDE X 43 FT LONG
THE CEDAR 3 IS A TWO BEDROOM PLAN WITH A U-SHAPED KITCHEN THAT COMES WITH VERY LARGE PENINSULA EQUIPPED WITH A WRAP AROUND EATING BAR, THE LIVING ROOM IS VERY SPACIOUS, THIS IS A NEW 2 BEDROOM PLAN FOR 2026


12 WIDE X 44 FT LONG
THE MONTEREY 5 IS A 2 BEDROOM PARK MODEL WITH A U-SHAPE KITCHEN, SPACIOUS LIVING ROOM, VAULTED CEILINGS THROUGH OUT, THE BEDROOM COMES WITH HIS AND HER CLOSETS.

We use cookies to analyze website traffic and optimize your website experience. By accepting our use of cookies, your data will be aggregated with all other user data.