
We are pleased to present our exclusive park model floor plans. These designs are the culmination of more than two decades of experience in crafting park model residences. Our commitment to innovative design features and superior specifications results in some of the most aesthetically pleasing and spacious four-season park model homes available in the market.

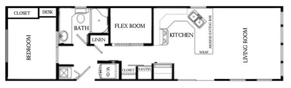
12/14 FT WIDE X 41 FT LONG
THE ODYSSEY IS A ONE BEDROOM WITH A VERY NICE KITCHEN THAT COMES WITH VERY LARGE PENINSULA WITH A WRAP AROUND EATING BAR, THE LIVING ROOM IS VERY SPACIOUS, THERE IS LOTS OF STORAGE WITH A BROOM CLOSET, A LINEN CLOSET, AND HIS AND HER CLOSETS.




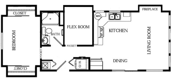
13 FT WIDE X 41 FT LONG
THE ODYSSEY 2 IS A ONE BEDROOM PARK MODEL THAT HAS A FANTASTIC KITCHEN WITH A LARGE PENINSULA, AN INCREDIBLE LIVING ROOM WITH 7.5 FOOT WINDOWS, WALK IN SHOWER WITH GLASS DOORS, THE BEDROOM ALSO HAS GREAT WINDOW FEATURES AND A BUILT IN DESK.


.


12/16 FT WIDE X 38 FT LONG
AT JUST ABOUT 16 FEET WIDE YOU KNOW WHY WE CALL IT THE GRAND, THIS ONE BEDROOM HOME OFFERS ONE OF THE MOST SPACIOUS GREAT ROOMS IN THE PARK MODEL INDUSTRY, THE BEDROOM HAS HIS AND HER CLOSETS. THE ULTIMATE IN COMFORT.




12/14 FT WIDE X 41 FT LONG
THE ROSEDALE IS BEAUTIFUL ONE BEDROOM 1 AND A HALF BATH FLOOR PLAN THE BEDROOM CAN ACCOMODATE A KING SIZE BED AND COMES WITH HIS AND HER CLOSETS OR BUILT IN ARMOIRES, THE L-SHAPE KITCHEN COMES WITH AN ISLAND AND A PANTRY, THE LIVING ROOM IS VERY BRIGHT AND SPACIOUS ANOTHER GREAT PLAN.




12/14 FT WIDE X 39 LONG
THE OASIS IS A TWO-BEDROOM PLAN WITH VAULTED CEILINGS
THROUGHOUT, HIS AND HER CLOSETS, ROOM FOR A KING SIZE BED, VERY OPEN LIVING AREA WITH AN L-SHAPED KITCHEN.




12/13 WIDE X 43 FT LONG
THE CEDAR IS A TWO BEDROOM PLAN WITH A U-SHAPED KITCHEN THAT COMES WITH VERY LARGE PENINSULA EQUIPPED WITH A WRAP AROUND EATING BAR, THE LIVING ROOM IS VERY SPACIOUS, THIS IS A NEW 2 BEDROOM PLAN FOR 2026




12 WIDE X 44 FT LONG
THE MONTEREY IS A 2 BEDROOM PARK MODEL WITH A U-SHAPE KITCHEN, SPACIOUS LIVING ROOM, VAULTED CEILINGS THROUGH OUT, THE BEDROOM COMES WITH OVERHEAD CABINETS AND NIGHT STANDS, A BUILT IN DESK/VANITY, AND A LARGE CLOSET.




12/13/14 FT WIDE X 41 FT LONG
THE ASPEN IS A BEAUTIFUL THREE BEDROOM PARK MODEL WITH A VERY SPACIOUS KITCHEN AND LIVING ROOM, VAULTED CEILINGS THROUGHOUT.



We use cookies to analyze website traffic and optimize your website experience. By accepting our use of cookies, your data will be aggregated with all other user data.